
开发商
后浪时尚总部基地,由中国500强、省属千亿国企湖南建投旗下企业湖南建投地产集团,联合厦门展沣产城投资有限公司共同打造。
整体规划
☀ 总用地面积150亩,总建筑面积约24万㎡
☀ 6万㎡叠级艺术台地景观
☀ 1万㎡城市级秀前广场
☀ 300m时尚潮云商街
☀ 8000㎡云顶公园
☀ 1500㎡云顶秀场
☀ 30000㎡仓储空间
☀ 定制精装员工公寓
☀ 品牌展厅+研发办公+商务会客三段式总部空间
☀ 四合院式组团架空创新布局

八大功能
☑ 生态总部
☑ 研发设计
☑ 品牌展厅
☑ 定制工厂
☑ 直播基地
☑ 众创孵化
☑ 设计师酒店
☑ 产业链共享运营

合院总部
♫ 单层约510㎡整栋约2895㎡的合院总部(6层)
♫ 停车入户、大堂入户双入户设计
♫ 顶层露台赠送约120平米
♫ 共享庭院约3000平米
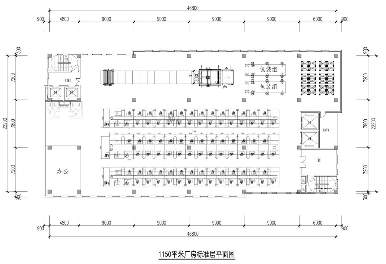
智能工厂
♪ 一期工厂单层面积约为806、1136㎡两种
♪ 层高4.2米、柱距7.8*9米、货梯荷载3吨
♪ 定制精装员工公寓,解决招工难问题,提升坪效,提高企业员工幸福感
运营赋能
物业商管:中国智慧园区综合运营服务商——天安运营
院企合作:专业型人才培养体系——香港服装学院
指导协会:湖南省服装行业协会、株洲服饰产业联合会
研发设计:国内领先的时尚产业综合体运营商——设界科技
集成工厂:服装行业信息化领跑者——红豆工业互联
共享版房:一站式纺织服装产业云平台——衣链云平台
产业链路:纺织服装产业服务平台——梧桐台
智能制造:全球缝纫机第一品牌——杰克科技
金融服务:金融服务专家——汇智杰科技
检验检测:一站式质量控制解决方案——杭美检测
品牌孵化:品牌运营和项目孵化中心——万相企业孵化中心
企业成长:企业经营管理导师团——创赋商学/卓航教育
数字园区:产业数字赋能专家——美象信息
人力服务:智能化模块建筑+科技型人力资源服务——中湘智建
建筑设计:深交所上市一流设计集团——华阳国际
景观设计:景观艺术设计专家——易兰规划设计院

项目展示
作为服饰产业品牌研发总部园区,实现从产业园区到产业社区,最终到产业生态的三级跨越。
形成空间更开放、社群交流更活跃。促进人才与人才、企业与企业的深度链接,立体化搭建设计研发、院企合作、智能制造、品牌运营、企业成长、线上平台等版块,构建株洲服饰产业多元共生、品牌聚合、上下游联动共享的“雨林式”服饰产业生态圈。
精装定制员工公寓、拎包入住
已建公寓项目实景照片
后浪精装员工公寓效果图

芦淞之上 辐射全国
中国中部创新性时尚产业集群
24万方产城融合封面之作
赋能经营成长的产业社区
产业占位
芦淞之上 | 产城宏篇
行业交点 | 再造胜势
产城融合
生产、生态、生活“三生”融合
迭代设计
品牌展厅、研发办公、商务会客三段式办公总部
智能化、集约化、定制化『智』造工厂
一栋一品牌/一企一庭院
匹配智能数字时代生产需求
实现全产业链时尚产业生态圈
位置导航
微信扫描下方的二维码阅读更多精彩内容























发表回复